New build: 1/2-Room apartment with terrace Kreukölln Maybachufer

12059 Berlin, Apartment for sale

Features and amenities

✅ Keine Mietpreisbegrenzung – ideal für Kapitalanleger
✅ KfW-40 sowie 5 % AfA-Steuerabschreibung nutzbar
✅ Keine Käuferprovision
✅ Direkt am Maybachufer – eines der „Top 10 coolest areas in the world“
✅ Starkes Wertsteigerungspotenzial
✅ Erstklassige Lage am Dreiländereck, an der Spree und in Alt-Treptow
✅ Gesundes & energieeffizientes Wohnkonzept dank moderner Holz-Hybrid-Bauweise
✅ Hochwertige Individualisierungsmöglichkeiten & flexible Grundrisse für ein Zuhause nach Ihren Wünschen
✅ Architektur von hoher Qualität mit zeitloser Fassadengestaltung und bodentiefen Fenstern
✅ Alle Einheiten mit Balkon oder Terrasse und grünen Ausblicken
✅ Ruhige Wohnlage mit lebendiger Nachbarschaft, Cafés, Schulen & Kultur in fußläufiger Entfernung
✅ Exzellente Verkehrsanbindung: S-Bahn, U-Bahn & Busse in wenigen Minuten erreichbar
✅ Tiefgarage für Autos, Fahrräder & E-Mobilität (optional erwerbbar)

Main property information

  • Property ID
    1863-21
  • City area
    Neukölln
    12059 Berlin
  • Room(s)
    2
  • Status
    vacant
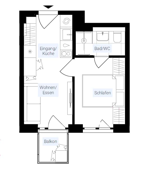
  • Size approx:
    25.95 m²
  • Usable space
    26.95 m²
  • Sale Price
    260,000 EUR
  • Floor
    4
  • Bedroom
    1
  • Balcony
    1
  • Elevator
    Yes
  • Year of construction
    2027
  • Property Type
    Apartment
  • Brokerage fee
    No buyer commission

Energy performance certificate

  • Certificate type
    projected consumption
  • Construction year
    2025
  • Primary energy source
    ELECTRICITY
  • Energy use
    15.00 kWh/(m²·a)
  • Energy class
    A+

Video

City area

Located in the south of Berlin, Neukölln is a cosmopolitan and bohemian neighborhood. The numerous stalls of the mythical Sonnennallee and the colorful market of Maybachufer testify to the important multicultural community. There are also trendy young people from around the world, especially around the Weserstrasse, which is full of bars, vegan restaurants and designer boutiques. In the heart of Neukölln, the large Hasenheide park, between Hermannplatz from and the former Tempelhof airport, will delight outdoor enthusiasts. To the south of the town hall, Rixdorf is a charming neighborhood with the airs of villages around the Richardplatz. There are many small cafes, cobbled walks, and urban houses. For several years Neukölln has experienced unprecedented economic and property development. Every year, the famous "48 hours of Neukölln", open doors of workshops, are the opportunity to meet the many artists living in this neighbourhood.

The displayed property location is approximate

Send a request

* Pflichtangaben
 encrypted via SSL

Property description

The Garden Living is being developed in one of Berlin’s most promising neighborhoods. Right by the canal at Kiehlufer and just steps from Treptower Park, this new-build project blends sustainable architecture, modern comfort, and vibrant Kiez atmosphere – creating a living environment where community, nature, and urban life meet.

With the exclusive Home Designer tool, buyers can personalize every detail – from flooring and wall finishes to kitchen cabinetry and countertops – creating a truly upscale, tailor-made home. The development comprises 24 bright apartments ranging from smart studios to spacious four-room homes. Each unit features flexible floor plans, floor-to-ceiling windows, and private outdoor spaces such as balconies or terraces – with green views and abundant natural light.

The project stands out with its timber-hybrid construction, energy-efficient systems including photovoltaic panels and air-source heat pumps, and a beautifully landscaped communal garden with a pergola and glass pavilion. An underground garage provides parking for cars, bicycles, and e-mobility.

Set in a quiet side street, The Garden Living offers a calm retreat while being surrounded by a lively urban scene. The neighborhood combines the charm of a traditional Berlin Kiez with the dynamism of a growing start-up hub. Trendy cafés, restaurants, organic shops, schools, and cultural venues are all within walking distance, and public transport connections (S-Bahn, U-Bahn, and bus) ensure quick access to the city center.

Whether as a stylish home or a secure investment property, The Garden Living offers a rare opportunity to buy into one of Berlin’s most attractive residential projects.

Our team at First Citiz Berlin will be happy to provide you with further information on this project or arrange a free consultation.

Additional Information

All information about this property and this real estate project is based on information provided by the seller(s) and/or their representatives. We do not accept any liability for the accuracy or completeness. Error and prior sale can be expected. Some photos and property visualizations are illustrative examples and non-binding. This offer is confidential and is solely intended for its recipient. Any disclosure must be authorized by First Citiz GmbH. This offer includes all units located in the same real estate project for which First Citiz GmbH makes all relevant information available, including units' price lists, floor plans and list of still available units for sale. The recipient of this offer has the obligation to inform First Citiz GmbH of the conclusion of a purchase contract for this property or any other property located in the same real estate project.

Send a request

Properties in the same price range

Brand-new 2-Room Apartment with Balcony by Maybachufer

Berlin - Neukölln
Room(s)
2
Property size
25.95 m²
Usable Area
26.95 m²
Status
vacant
Sale Price
253,000 EUR
12059 Berlin, Apartment for sale for sale, Neukölln
new

Living by Maybachufer: Bright 2-Room Apartment with Balcony

Berlin - Neukölln
Room(s)
2
Property size
26.15 m²
Usable Area
27.15 m²
Status
vacant
Sale Price
260,000 EUR
12059 Berlin, Apartment for sale for sale, Neukölln
new

New build: 1/2-Room apartment with terrace Kreukölln Maybachufer

Berlin - Neukölln
Room(s)
2
Property size
25.95 m²
Usable Area
26.95 m²
Status
vacant
Sale Price
260,000 EUR

Vacant 2-room apartment at Grazer Platz, next to Hans-Baluschek-Park

Berlin - Schöneberg
Room(s)
2
Property size
62 m²
Status
vacant
Sale Price
275,000 EUR

Other 2 room properties for sale

12059 Berlin, Apartment for sale for sale, Neukölln
new

Upscale 2/3-room apartment with South-West Balcony next to Maybachufer

Berlin - Neukölln
Room(s)
2
Property size
52.76 m²
Usable Area
54.76 m²
Status
vacant
Sale Price
506,000 EUR

Brand-new 2-Room Apartment with Balcony by Maybachufer

Berlin - Neukölln
Room(s)
2
Property size
25.95 m²
Usable Area
26.95 m²
Status
vacant
Sale Price
253,000 EUR
12059 Berlin, Apartment for sale for sale, Neukölln
new

Living by Maybachufer: Bright 2-Room Apartment with Balcony

Berlin - Neukölln
Room(s)
2
Property size
26.15 m²
Usable Area
27.15 m²
Status
vacant
Sale Price
260,000 EUR
12059 Berlin, Apartment for sale for sale, Neukölln
new

New build: 1/2-Room apartment with terrace Kreukölln Maybachufer

Berlin - Neukölln
Room(s)
2
Property size
25.95 m²
Usable Area
26.95 m²
Status
vacant
Sale Price
260,000 EUR